
Фильтр ФГГ-600
цена от
1 229 700 руб.
- Исполнение – горизонтальное
- Номинальный диаметр DN – 600 мм
- Номинальное давление PN – до 10,0 МПа
- Тонкость фильтрации – 4, 8, 12, 16 или 25 мм
- Максимальная производительность – 1800 м³/ч
- Материал корпуса – 09Г2С / 12Х18Н10Т / другая сталь
- Блочное исполнение – опционально
- Теплоизоляция – опционально
- Комплектация КИП, ЗРА – опционально
- Резервные фильтрующие элементы – опционально
Фильтр грязеуловитель горизонтальный ФГГ-600 (DN 600, 1800 м³/ч) — решение для нефтеперекачивающих станций и терминалов с высокой нагрузкой. Модель справляется с очисткой нефти, содержащей до 15% механических примесей, включая абразивные частицы. Внутренний диаметр корпуса 1200 мм обеспечивает минимальные потери давления даже при максимальной производительности.

Варианты применения
- НПС «Транснефть»: Фильтрация нефти на входе в резервуарные парки.
- Экспортные нефтепроводы: Подготовка сырья перед транспортировкой в страны Азии.
- Крупные ТЭЦ: Очистка мазута для котлов мощностью свыше 200 МВт.
Особенности нефтяных фильтров ФГГ-600
- Отсутствие дефектов в корпусе, подтвержденное ультразвуковым контролем.
- Теплоизоляция: Опциональная обшивка минеральной ватой для работы в условиях Крайнего Севера.
- Блочная поставка: Опциональная комплектация лебедкой, поддоном и площадкой обслуживания.
Технические характеристики фильтра для нефти ФГГ-600
Обозначение | Фильтр ФГГ-600 |
Производительность, м³/ч | 1800 |
Условное давление, Pу, МПа | 1,6; 2,5; 4,0; 6,3; 8,0 или 10,0 |
Температура нефти, ℃ | От -15 до +80 |
Температура нефтепродуктов, ℃ | От -20 до +80 |
Степень фильтрации, мм | 4, 8, 12, 16 или 25 |
DN, мм | 600 |
Dp, мм (внутренний диаметр корпуса) | 1200 |
L, мм (расстояние от фланца корпуса до кромки осевого патрубка) | 4500 |
L1, мм (расстояние от оси бокового патрубка) | 1900 |
H, мм (расстояние от оси ФГГ до опоры) | 1200 |
L2, мм (расстояние между опорами) | 2400 |
L3, мм (расстояние до опоры) | 1200 |
Обозначение | Блочный фильтр ФГГ-600 |
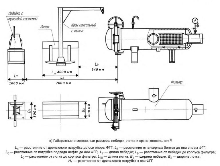
L7, мм (длина лебедки) | 1600 |
L8, мм (расстояние от лебедки до корпуса фильтра) | 7000 |
L9, мм (расстояние от лотка до корпуса фильтра) | 940 |
L10, мм (длина лотка) | 4000 |
В2, мм (ширина лотка) | 800 |
В1, мм (ширина лебедки) | 800 |
L5, мм (расстояние от анкерных болтов до оси опоры ФГГ) | 70 |
L6, мм (расстояние от патрубка подвода нефти до оси ФГГ) | 1050 |
L4, мм (расстояние от дренажного патрубка к оси опоры) | 1400 |
Н1, мм (расстояние от дренажного патрубка до оси ФГГ) | 800 |
Радиус вылета быстроразъемного концевого затвора, мм | 1890 |
Количество штурвалов быстроразъемного концевого затвора, шт | 2 |
Чертеж фильтра ФГГ-600

Чертеж блочного фильтра ФГГ-600

Расшифровка условного обозначения

Например, фильтр грязеуловитель горизонтальный ФГГ номинальным диаметром DN 200 на номинальное давление PN 1,6 МПа, блочного исполнения, с осевым отводом нефти или нефтепродуктов, с правым расположением патрубка подвода нефти или нефтепродуктов, в сейсмостойком исполнении С по MSK — 64 [10], без теплоизоляции, вид климатического исполнения УХЛ1 по ГОСТ 15150 будет обозначаться следующим образом: ФГГ-200-1,6-Б-0-П-С-УХЛ1.
Преимущества ООО "УЗСК"
- Собственное конструкторское бюро, разрабатывающее нестандартные решения по ТЗ заказчика.
- Гидроиспытания на аттестованном стенде до 50 МПа.
- Организация шеф-монтажа с участием сертифицированных специалистов.
Заполните форму заказа